Oliver Street

 
 

Project Type: RESIDENTIAL, AGE-IN-PLACE

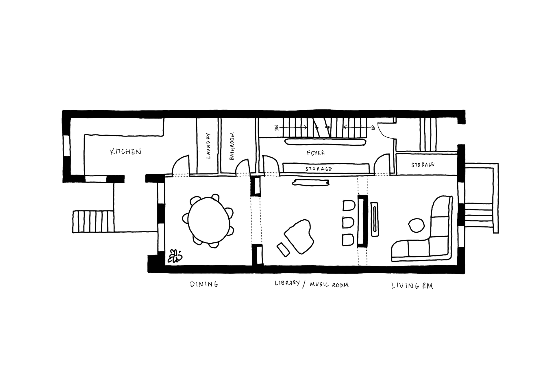
This project reimagines the traditional enfilade concept to create adaptable and engaging spaces for a couple seeking a long-term, age-in-place living solution within the first floor of their townhouse. By thickening the walls to form portal-like separations, the design maintains visual continuity while offering optimized storage and display for cherished memories and belongings. This flexible approach allows for the transformation of spaces over time, ensuring the home evolves with the couple's changing needs. A living room, for example, can seamlessly transition into a bedroom as circumstances require.

 
 
ResidentialAAA AAA2023